Castors

12 Logements en Habitat intermédiaire passif | Zac Desjoyaux à Saint Etienne | Loire
septembre 2011

Au sein de l’écoquartier que définit le cahier des charges de la Zac Desjoyaux , l’îlot dans lequel s’inscrit le projet affiche des exigences performantielles particulièrement élevées, notamment en matière de consommation énergétiques , fixées pour le chauffage au niveau de 13 kWh/m2.an
Le projet vise la certification Passivhaus qui sera l’une des premières françaises pour des logements groupés.
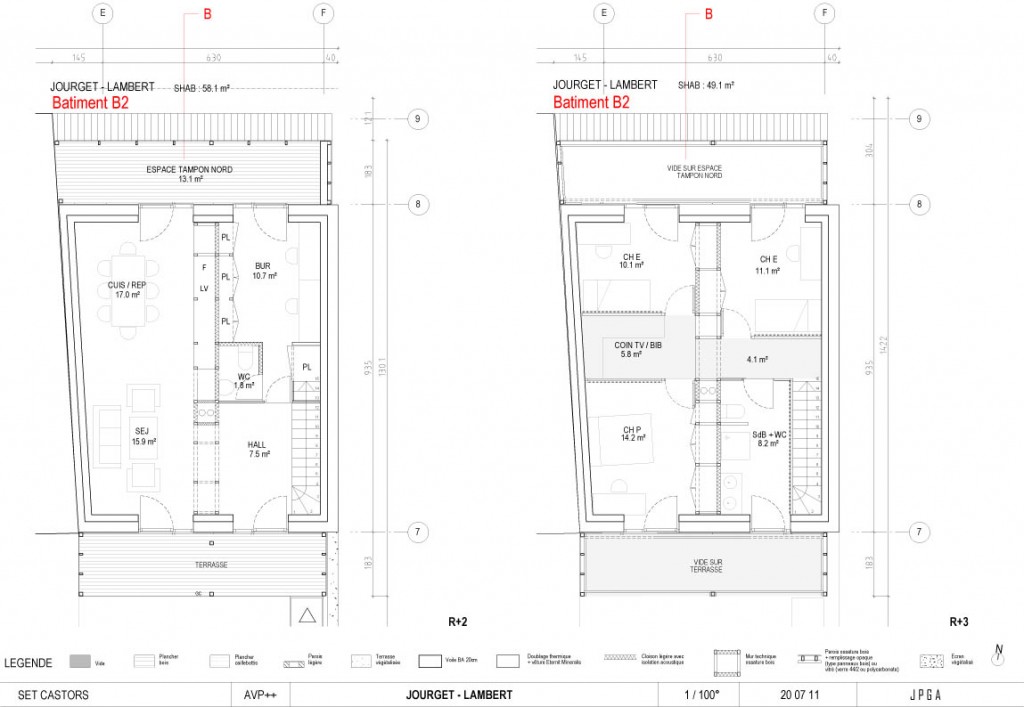
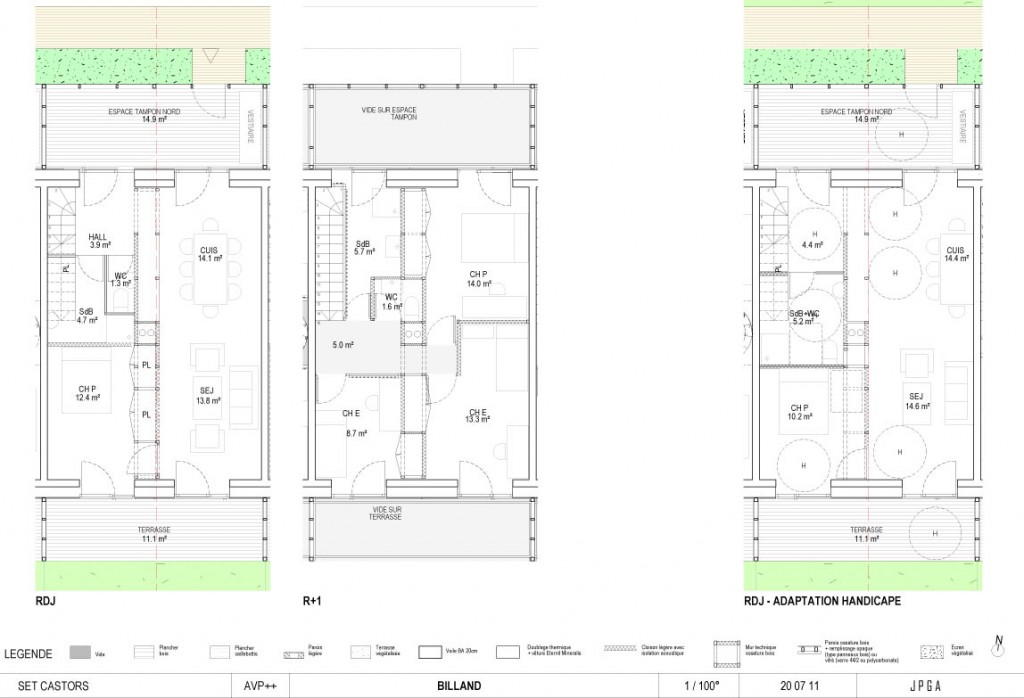
Les 12 logements principalement organisés en duplex sont accompagnés de locaux communs dans un but d’économie , de relations sociales et de mixité des fonctions : salle de réunion / gîte / buanderie / atelier / bureau à louer
L’implantation dans la parcelle vise à exploiter au mieux les ressources bioclimatiques (ensoleillement maximum) et dégage un jardin central commun qui articule les distributions.
Le projet repose sur des principes architecturaux forts qui ambitionnent de définir les conditions d’un habitat en phase avec les exigences environnementales : très grande simplicité constructive / compacité maximum / performances de l’enveloppe / régulation thermique naturelle / flexibilité / rationalité des installations techniques / ouvertures / matériaux sains / présence végétale / etc… Ils génèrent des éléments singuliers : le mur technique central en bois qui regroupe l’ensemble des fluides et porte le plancher intermédiaire , l’espace tampon nord qui offre un espace de vie supplémentaire en demi-saison.

Fiche Technique

Maître d’ouvrage
Association de 12 familles

Coût des travaux
2 261 500 €HT

Surface
SHAB 1400 m2 / SHON 1726m2

Calendrier
Avant Projet Nov 2008 / Chantier 2012

Crédits Images
JPGA