Felipe Faraggi
founder & developer | python & ethereum
Public Speaking
Resume
Contact
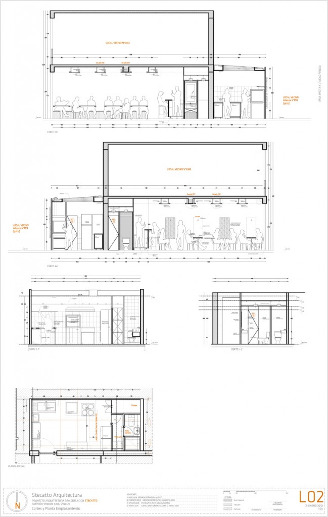
Restaurant Steccato
« Previous
/
Next »
2010
/
Freelance
/
Restaurant Steccato à Santiago, Chile.