Felipe Faraggi
founder & developer | python & ethereum
Public Speaking
Resume
Contact
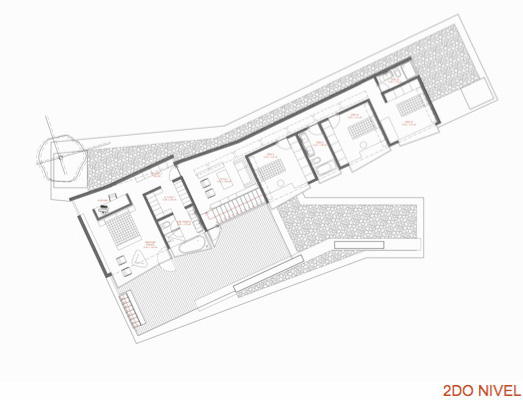
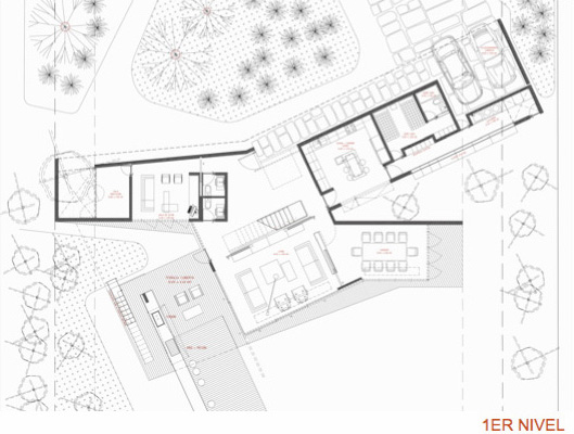
casa450
« Previous
/
Next »
2009
/
A+R
,
Collaborations
/