Viga 22
|
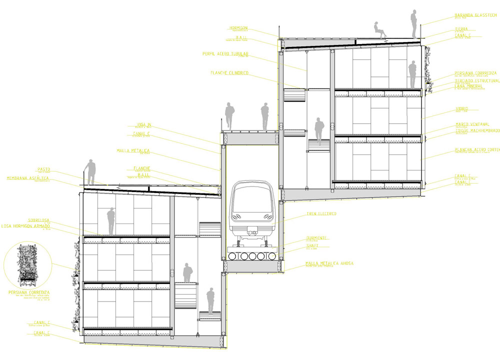
Une ville utopique superposée à la ville de Santiago. Trois types de projets, de hautes tours, tourelles, et «poutres». Chaque programme distinct et avait répondu à l’environnement de base. Projet développé par des étudiants de l’atelier 7, réalisé par Renzo Alvano et Pablo Riquelme. video avec tren en mouvement> |






